本次為禪意辦公室裝修效果圖,辦公室設計面積370平方,設計師在辦公室設計中,以自然、禪意為辦公室設計關鍵詞,目的就是希望營造一個具有東方韻味的幽靜的辦公空間。
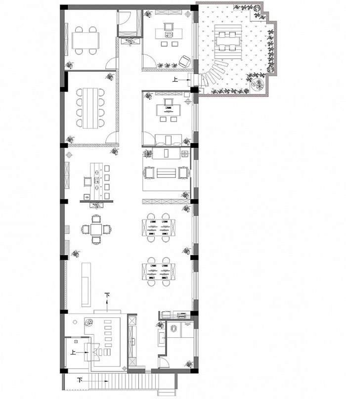
▼禪意辦公室平面圖

▼禪意辦公室入口

▼禪意辦公室前臺

▼禪意辦公室前臺

▼禪意辦公室水池

▼禪意辦公室辦公區(qū)

▼禪意辦公室辦公區(qū)

▼禪意辦公室交流區(qū)

▼禪意辦公室交流區(qū)

▼禪意辦公室會議室

▼禪意辦公室休息區(qū)

▼禪意經(jīng)理辦公室

▼禪意經(jīng)理辦公室

▼禪意辦公室洗手間

本次禪意辦公室裝修效果圖講解到此結(jié)束,設計師在辦公室設計中,以自然、禪意為辦公室設計關鍵詞,目的就是希望營造一個具有東方韻味的幽靜的辦公空間。
辦公室設計案例 |辦公室設計風格 | 辦公室裝修攻略 | 辦公室軟裝設計 | 嵐禾資訊 | 免責聲明 | 服務流程 | 聯(lián)系嵐禾
地址:杭州市上城區(qū)南星橋街道,復廣支二路海運國際大廈A座1205 郵編:310000 業(yè)務咨詢:0571-88091570 傳真:0571-88091570 E-mail: 1467724601@qq.com
辦公室裝修:m.morphosilhouette.com